CALL FOR ARTIST – ARTdeSUISSE Zürich, Herbstausgabe 2026

3. Internationale Kunstausstellung in der Galerie Art & Business

Veranstaltungsort

Adresse: 
Trittligasse 4, 8001 - Zürich
Galerie Art & Business

ARTdeSUISSE lädt Kunstschaffende herzlich zur Teilnahme an der dritten Kunstausstellung in Zürich ein. Die Herbstausgabe 2026 findet in der Galerie Art&Business in der Zürcher Altstadt statt – im Herzen des lebendigen Kunst- und Kulturquartiers.

Die Ausstellung wird an der Trittligasse 4, 8001 Zürich durchgeführt – in einer lichtdurchfluteten Halle mit historischem Charme. 

Die Trittligasse überzeugt durch ihre zentrale Lage: Das Bellevue erreichen Sie in nur drei Minuten, den Paradeplatz in sechs und den Hauptbahnhof in acht Minuten zu Fuss.

Die Zahl der Ausstellungsplätze ist aufgrund der räumlichen Gegebenheiten begrenzt.
Sollte Ihr gewünschter Ausstellungsplatz bereits vergeben sein, werden Sie persönlich kontaktiert.
Die Rechnungsstellung erfolgt erst nach Prüfung und Bestätigung Ihrer Anmeldung.

Anmeldeformulare (D / EN):

Öffnungszeiten mit Publikum
Herbstausgabe 2026

Donnerstag  29. Oktober 2026, 17 – 22 Uhr Vernissage
Freitag  
30. Oktober 2026, 10 – 20 Uhr
Samstag    01. November 2026, 10 – 20 Uhr
Sonntag 
02. November 2026, 10 – 18 Uhr

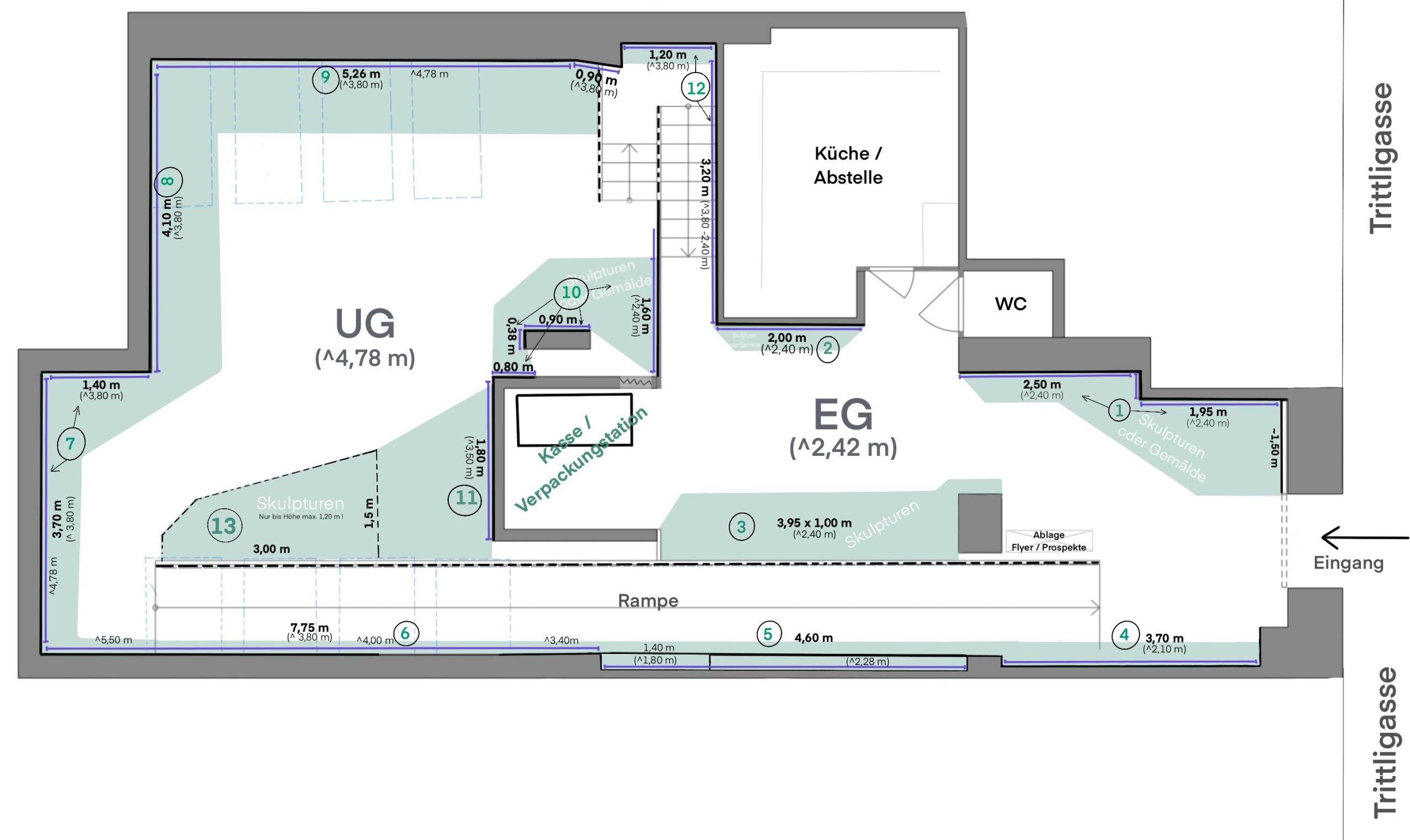
GRUNDRISS

Fotos Galerie

Details Ausstellungsplätze:

Impressionen vorige Ausstellung
Herbstausgabe 2025

AUSSTELLUNGSKATALOG (Anyflip)

Impressionen AUFBAUARBEITEN (Video)
Impressionen VERNISSAGE (Video)